How to Measure

How to Measure Your Cabinets

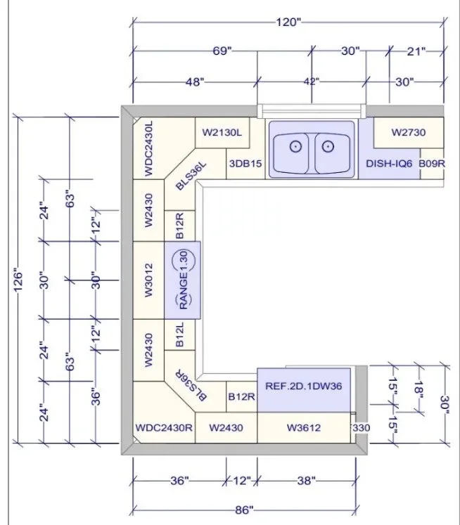
Measure Your Cabinets With Confidence!

When you are starting to measure, you should begin with the length of the entire wall. Simply draw a line on the sheet and mark the length along the line. It is best to start with a corner to the adjoining wall and follow the wall edge from one end to the other, avoiding any appliances, fixtures, or windows that may be in the way.

If there is a window, measure how far the edge of the window or window casing is to the corner, as well as the total length and height of the window. If the kitchen does not have a corner to go off, it is still important to get the measurements of the location of the window so that we can determine how it may impact the placement of cabinets.

Ceiling height must be measured to determine the size of upper cabinets going in.

Center measurements of the sink, stove, refrigerator and any other appliance in the layout are needed.

Additional photos of the current kitchen will help us have a better understanding of the measurements brought in.

How Valley Discount Cabinets Uses Your Hand Measurements

Check Out Some of the Amazing Features Of All Our Custom Cabinets Below!

  • Soft Closing Drawers & Doors
  • L-Bracketed Reinforced Cabinets Capable Of Supporting Heavy Stone Tops
  • Drawers Have Quality Dove Tail Construction &  Made Of Solid Wood
  • Fully Extendable Drawers
  • All Cabinets Are Made of Furniture Grade Plywood
  • NO Particle Board Anywhere!

If you're looking for a quality cabinets, Valley Discount Cabinets is the best for you! Call Valley Discount Cabinets NOW (480) 746-4100